INGATLAN HELYSZÍNE:
Az ingatlan a II. kerületben, Újlak és Szemlőhegy határán található. A környék közlekedése infrastruktúrája kiváló. Gépkocsival könnyen megközelíthető, de a közeli Bécsi úton, és a Lajos utcában több villamos/buszjárat is közlekedik (17, 19, 41-es villamos és a 29, 111, 9, 109, 65, 165-ös busz), melyekkel vagy Óbuda központjához, a Flórián térhez, vagy Buda főbb csomópontjaihoz érhetünk el (Margit híd budai hídfő, Batthyány tér, Gellért tér, stb.). A néhány sarokra lévő Kolosy üzletházban sokféle üzlet és szolgáltatás áll a rendelkezésünkre, és a néhány villamosmegállónyira lévő Flórián üzletház, vagy a Bécsi úti Stop Shop is kiváló vásárlási lehetőséget kínál. Az itt lakók pihentető sétákat tehetnek a csendes, hangulatos mellékutcákon, a Bécsi út forgalomcsillapított részén, de a közeli Amfiteátrum és a Dunapart is jó kikapcsolódást biztosít. Kicsit hosszabb túrával a Hármashatárhegy is megközelíthető. Sportolásra a közeli Panoráma Sportközpont is jó lehetőségeket kínál. Éttermek, szórakozóhelyek tucatja érhető el gyalogosan rövid idő alatt. Iskolák, orvosi rendelő, gyógyszertár, mind-mind található a közelben.
ÉPÜLET JELLEMZŐI:
A téglaépítésű, sátortetős épület 2001-ben épült, két lakás és három iroda található benne, melyeket lifttel is meg tudunk közelíteni, akár az épület alatti teremgarázsból is. Az épület karbantartott, újszerű. A ház alsó szintjén teremgarázs található, míg az U alakú épület közepén zöld udvar került kialakításra.
IRODA JELLEMZŐI:
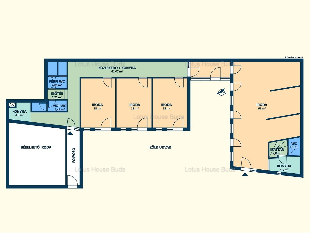
A kiadásra kínált ingatlan az épület földszintjén található és a ház kertjéből két bejáraton át is megközelíthető. Újszerű, ahogy az épület is. Szomszédja gyakorlatilag nincs.
Az egyik bejárat közvetlenül a kert végéből elérhető, míg a másik a kertből nyíló folyosóról. Ezen az ajtón belépve a konyha+közlekedő nagy terébe érünk, amelyből balra van a teakonyha, mellette a beérést segítő gardróbszekrénnyel, majd már a közlekedőből mehetünk fel két lépcsőfok segítségével a mellékhelyiségekhez – külön női és férfi került kialakításra. A közlekedőn továbbhaladva jobbra nyílik a három egyforma méretű és a kertre tájolt irodahelyiség. Mindegyikből ki is léphetünk a kertbe. Egy kis társalgó köti össze ezt az irodarészt a másik végével az irodának, ahova átmenve a nagyméretű, némileg osztott terű irodahelyiségbe érkezünk. Ha a hátul lévő bejáraton lépünk be, akkor balra találjuk a konyharészt, amiből egy tároló/raktár és onnan egy WC+mosdó helyiség nyílik.
IRODA MÉRETEI:
Az iroda alapterülete 178nm, ebből az irodák 63nm és három 18nm nagyságúak.
Belmagasság: 2,7m
MŰSZAKI FELSZERELTSÉGE:
A fűtést és a meleg vizet a ház központi kazánja biztosítja egyedi mérés mellett. Az elhasznált víz mennyiségének mérésére külön vízóra került felszerelésre. Kiépített a riasztórendszer is.
KÖLTSÉGEK:
A teljes rezsiköltség a fogyasztás függvényében alakul.
PARKOLÁS:
Parkolni az utcán lehet fizető övezetben, kényelmesen, illetve az irodával kötelező kibérelni 2-3 teremgarázshelyet 51eFt/hó/db összegért.
BÉRLET FELTÉTELEI:
Az iroda jelenleg nem használt, így akár azonnal átvehető a kéthavi kaució megfizetése mellett. Az ingatlan hosszú távra, de minimum két évre bérelhető. A kisállatot tartani nem lehet. Csendes, kislétszámú, minimális ügyfélforgalmú tevékenység végezhető az irodában.
Az iroda bérleti díja: 721.500,- forint + Áfa + rezsi + két havi kaució
—
Amennyiben tetszett a hirdetés, és megnézne még néhány hasonló ingatlant, tekintse meg a Lotus House további kínálatát, és válogasson Budai ingatlanjaink közül!
Ingatlanok összehasonlítása
Összehasonlít